Đang Xem: 19
Thông tin công trình:
Mã bản vẽ
BV12TKNP
Địa chỉ
Quế Võ, Bắc Ninh
Kiểu Mái
Mái bằng
Số tầng
2
Diện tích
54
Mặt tiền
4.3
Chiều dài
12.6
Số phòng ngủ
2
Loại nhà
Nhà phố 2 tầng
Thông tin chi tiết:
MẪU THIẾT KẾ NHÀ PHỐ 2 TẦNG MÁI BẰNG 4.3X12.6M TẠI BẮC NINH
Mẫu thiết kế nhà phố 2 tầng tại Bắc Ninh mái bằng có thể được coi là mẫu nhà “quốc dân” ở những nơi thành thị “đất chật người đông”. Mẫu nhà này nằm ở khu vực Quế Võ – Bắc Ninh, nơi khá đông dân cư và có nhịp độ phát triển kinh tế nhanh chóng.
Tổng diện tích của mẫu nhà này vào khoảng 54m2, kích thước mặt tiền vào khoảng 4.3m, chiều dài là 12.6m. Có thể thấy mặt tiền mẫu nhà này khá hạn chế và đây là một bài toán khó đối với các kiến trúc sư tại Nam Phong.
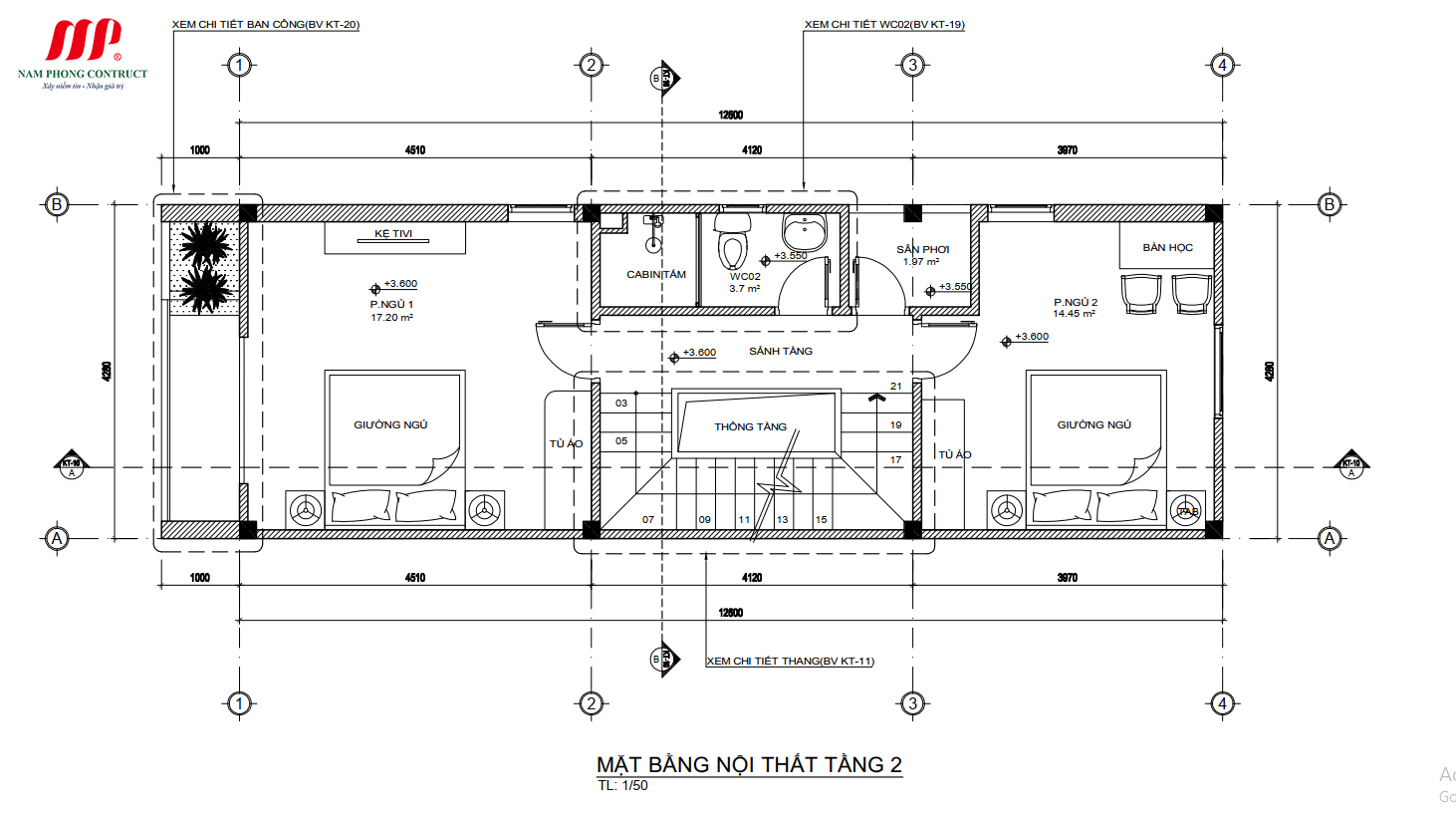
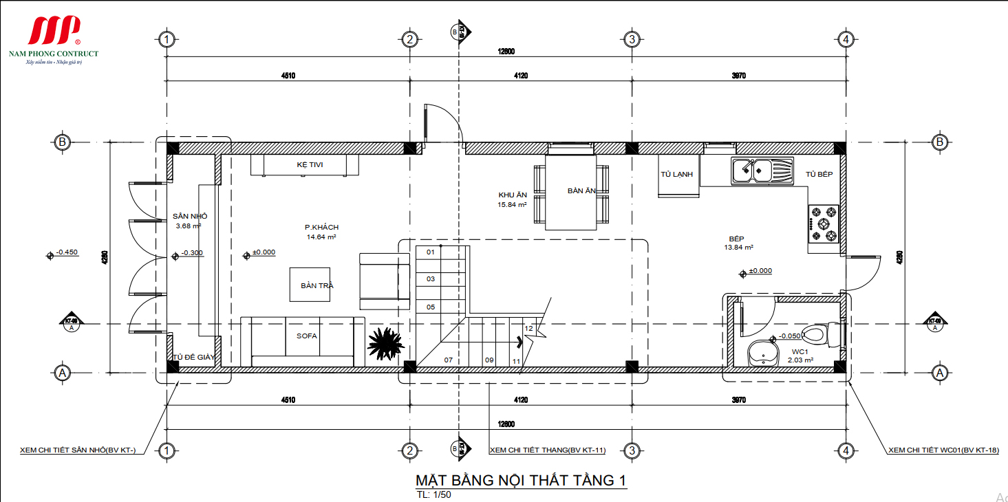
Bố trí công năng mẫu nhà phố 2 tầng 4.3×12.6 này gồm:
- Mẫu mái bằng – mẫu mái quốc dân trong lối kiến trúc nhà ở Việt Nam. Mái bằng tôn lên vẻ đẹp cứng cáp, hiện đại của căn nhà phố.
- Tầng 1 gồm phòng khách, khu bếp phòng ăn, khu vệ sinh
- Tầng 2 gồm 2 phòng ngủ, sân phơi, khu vực thông tầng 1.
- Nhìn chung mẫu nhà được thiết kế khá đơn giản, không cầu kỳ nhằm tiết kiệm tối đa chi phí.
Mời các bạn tham khảo qua mẫu thiết kế nhà phố dưới đây:






CÔNG TY CỔ PHẦN THIẾT KẾ & XÂY DỰNG NAM PHONG
Địa chỉ: Số 383B – Nguyễn Trãi – Võ Cường – Bắc Ninh
Số Hotline: 1900 068 869 – 0368 025 666
Xem thêm:





