Đang Xem: 17
Thông tin công trình:
Mã bản vẽ
BV03TK2022
Địa chỉ
Hiệp Hoà, Bắc Giang
Kiểu Mái
Mái nhật
Số tầng
2
Diện tích
90
Mặt tiền
7.5
Chiều dài
12
Số phòng ngủ
4
Loại nhà
Nhà phố 2 tầng
Thông tin chi tiết:
MẪU THIẾT KẾ NHÀ PHỐ 2 TẦNG MÁI NHẬT 7.5x12M Ở BẮC GIANG
Nhà mái Nhật là một lối kiến trúc được rất nhiều gia chủ chọn lựa, bởi kiểu mái này có nhiều ưu điểm nổi bật, dễ thi công mà giá thành cũng khá phải chăng.
Mẫu thiết kế nhà phố 2 tầng tại Bắc Giang thuộc sở hữu của gia đình anh Khánh. Anh quả có một con mắt tinh tường và gu thẩm mỹ khá tốt. Một căn nhà có tông màu kem be chủ đạo, kết hợp với hệ thống cửa kính 100% giúp tổng thể ngôi nhà trở nên uyển chuyển và nhẹ nhàng hơn.
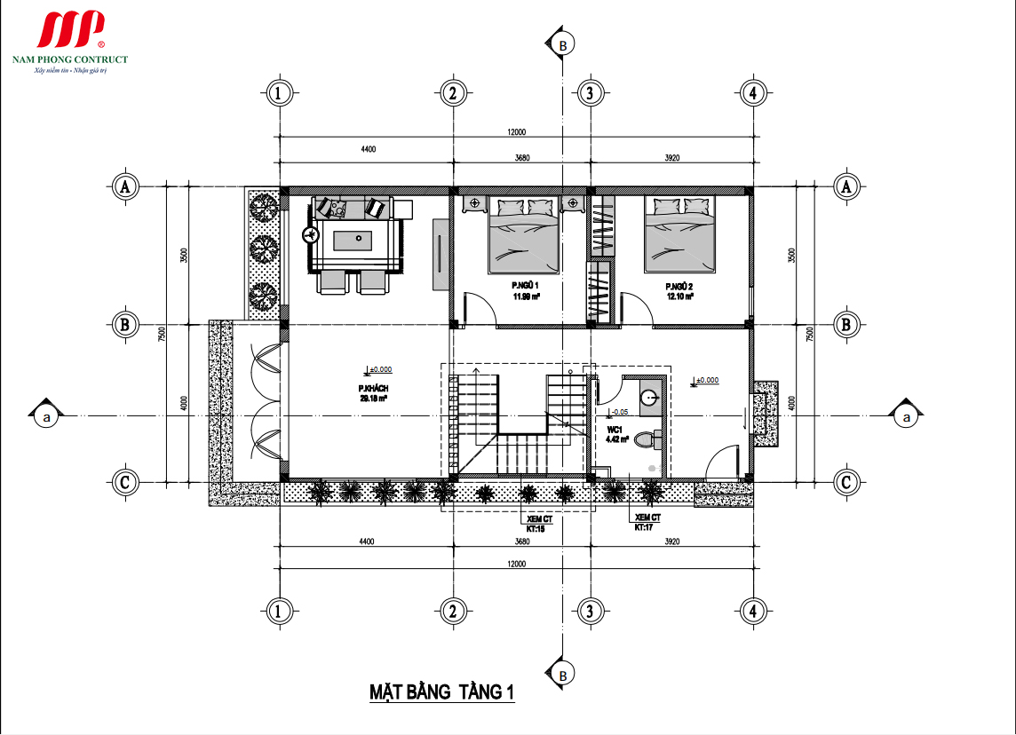
Mẫu nhà này có mặt tiền rộng 7.5m và dài 12m, phương án bố trí mặt bằng mẫu nhà gồm:
- Nhà có tổng diện tích 90m2, kích thước mặt tiền khoảng 7.5m, chiều dài 12m.
- Kiểu mái Nhật khá phố biến trong lối kiến trúc Việt, giúp thoát nước mưa tốt, bền và đẹp.
- Nhìn mặt tiền có khá nhiều cửa sổ, ô thoáng, thiết kế cửa kính 100% giúp ngôi nhà thoáng mát hơn, nhận được nhiều ánh sáng tự nhiên hơn.
- Tầng 1: gồm phòng khách, 2 phòng ngủ, khu vệ sinh và bếp
- Tầng 2: gồm 2 phòng ngủ, 1 phòng thờ, 1 phòng sinh hoạt chung, sân phơi, khu vệ sinh.
- Tầng 2 được bố trí ban công với lan can kính đẹp mắt, nhẹ nhàng, đủ không gian để trồng cây.
- Dọc theo sườn nhà được bố trí bồn trồng cây
Mời các bạn tham khảo qua mẫu thiết kế nhà phố dưới đây:






CÔNG TY CỔ PHẦN THIẾT KẾ & XÂY DỰNG NAM PHONG
Địa chỉ: Số 383B – Nguyễn Trãi – Võ Cường – Bắc Ninh
Số Hotline: 1900 068 869 – 0368 025 666
Xem thêm:





