Thông tin công trình:
Thông tin chi tiết:
MẪU THIẾT KẾ NHÀ PHỐ 2 TẦNG 13.5X13.1M MÁI NHẬT TẠI BẮC GIANG
Mẫu thiết kế nhà phố 2 tầng tại Bắc Ninh với ưu điểm như: tiết kiệm diện tích, đáp ứng nhu cầu sử dụng, thiết kế đẹp, hiện đại, nhiều phong cách đã lọt vào “mắt xanh” của nhiều gia chủ.
Với mảnh đất có kích thước mặt tiền 13.5m và chiều dài 13.1m gần như vuông, giúp cho ngôi nhà có nhiều không gian thiết kế bên trong. Với yêu cầu của anh Vinh ngôi nhà được thiết kế mang hơi hướng hiện đại, có 5 phòng ngủ. Với sự kết hợp của các hình khối và tông màu chủ đạo là trắng.
Mẫu nhà này có mặt tiền rộng 13.5m và dài 13.1m, phương án bố trí mặt bằng mẫu nhà gồm:
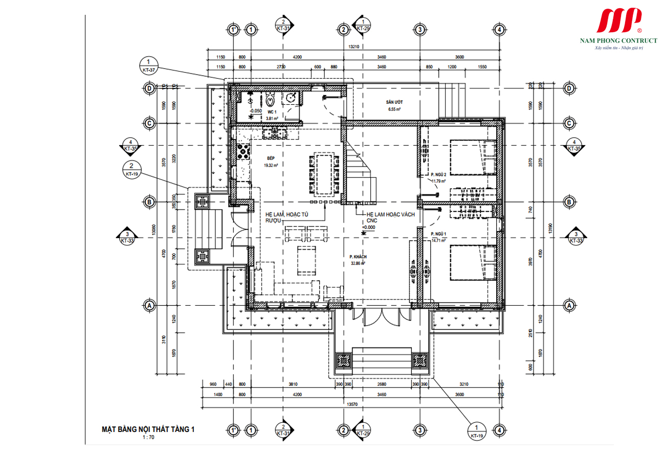
- Với mặt bằng tầng 1 bao gồm: 1 phòng khách, 2 phòng ngủ, 1 phòng bếp ăn và 1 phòng WC.
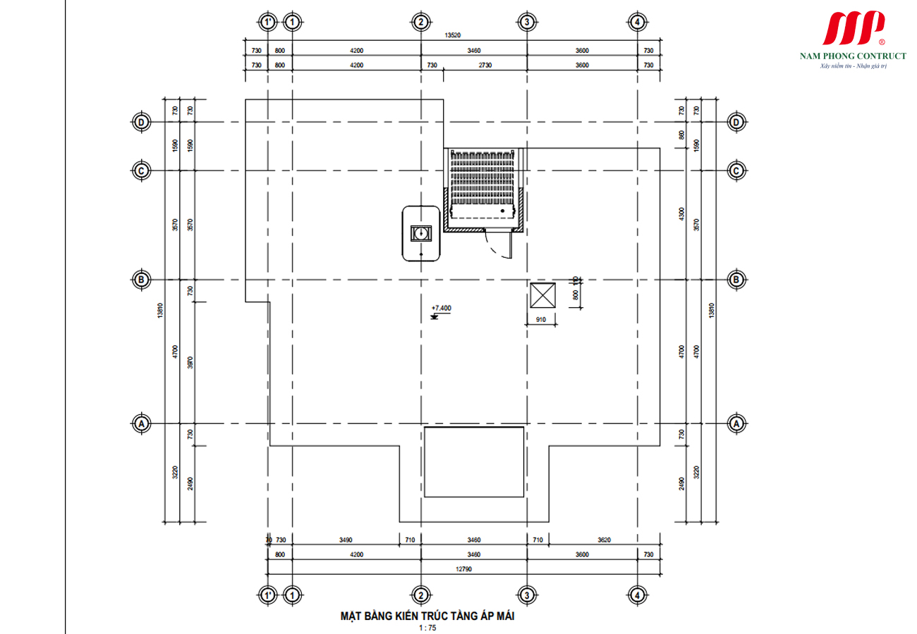
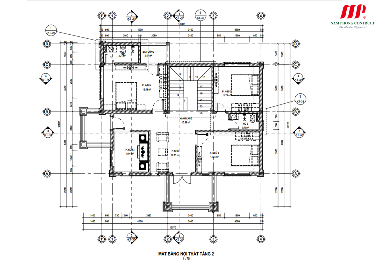
- Tầng 2 gồm: 3 phòng ngủ, 1 phòng thờ và 2 phòng WC, sân phơi và 3 ban công.
Ngôi nhà có gam màu trắng xanh kết hợp với mái nhật tạo cảm giác thanh lịch, sang trọng. Hệ thồng cửa sổ nhiều giúp ngôi nhà có nhiều ánh sáng tự nhiên tốt
Mời các bạn tham khảo qua mẫu thiết kế nhà phố dưới đây:







CÔNG TY CỔ PHẦN THIẾT KẾ & XÂY DỰNG NAM PHONG
Địa chỉ: Số 383B – Nguyễn Trãi – Võ Cường – Bắc Ninh
Số Hotline: 1900 068 869 – 0368 025 666





